การผลิตก๊าซชีวภาพจากของเสียฟาร์มปศุสัตว์ และโรงงานอุตสาหกรรม
สานักวิจัย ค้นคว้าพลังงาน (สวค.)กรมพัฒนาพลังงานทดแทนและอนุรักษ์พลังงาน
ความรู้เบื้องต้นเกี่ยวกับก๊าซชีวภาพ
- ก๊าซชีวภาพคืออะไร
- ขั้นตอนและปฏิกิริยาการเกิดก๊าซชีวภาพ
- องค์ประกอบของก๊าซชีวภาพ
- ปัจจัยที่มีผลต่อการผลิตก๊าซชีวภาพ
เทคโนโลยีการผลิตก๊าซชีวภาพที่ใช้ในประเทศไทย
- ระบบผลิตก๊าซชีวภาพจากมูลสัตว์
- ระบบผลิตก๊าซชีวภาพจากน้ำเสียในโรงงานอุตสาหกรรม
ประโยชน์ของก๊าซชีวภาพ
การคานวณหาปริมาตรก๊าซชีวภาพ
อุบัติเหตุที่เกิดจากระบบหมักก๊าซชีวภาพ
ความรู้เบื้องต้นเกี่ยวกับก๊าซชีวภาพ
ก๊าซชีวภาพ (Biogas) คืออะไร
ก๊าซชีวภาพ (Biogas) เป็นพลังงานสะอาดที่เกิดจากการนาของเสีย เช่น มูลสัตว์ น้ำเสียจากฟาร์มปศุสัตว์ น้ำเสียจากโรงงานอุตสาหกรรม ขยะและของเหลือใช้ทางการเกษตร มาผ่านกระบวนการหมักเพื่อให้เกิดการย่อยสลายสารอินทรีย์ในสภาวะไร้ออกซิเจน (Anaerobic Digestion) โดยแบคทีเรียหลายชนิด เมื่อสภาวะแวดล้อมเหมาะสม
ขั้นตอนและปฏิกิริยาการเกิดก๊าซชีวภาพ
ปฏิกิริยาชีวเคมีของกระบวนการย่อยสลายสารอินทรีย์โดยแบคทีเรียใน
สภาพไร้ออกซิเจน แบ่งออกได้ 3 ขั้นตอน ดังนี้
ขั้นที่ 1 การสลายสารโมเลกุลใหญ่ (Hydrolysis)
สารอินทรีย์ต่าง ๆ ที่มีขนาดโมเลกุลใหญ่ เช่น โปรตีน คาร์โบไฮเดรทและไขมัน จะถูกย่อยสลายโดยเอนไซม์ ทาให้แตกตัวมีขนาดโมเลกุลเล็กลง
ขั้นที่ 2 การผลิตกรดอินทรีย์ (Acidogenesis)
สารอินทรีย์ที่มีโมเลกุลเล็กลง จะถูกเปลี่ยนไปเป็นกรดอินทรีย์ระเหยง่าย (Volatile acid) และสารอื่น ๆ โดยแบคทีเรียพวกสร้างกรด (acid former) กรดที่เกิดขึ้นส่วนใหญ่ คือ กรดอะซีติค (Acetic acid) และกรดโพรพิโอนิค (Propionic acid)
ขั้นที่ 3 การผลิตก๊าซมีเธน (Methanogenesis)
กรดอินทรีย์ระเหยง่าย จะถูกย่อยสลายเป็นก๊าซมีเทน (CH4) และคาร์บอนไดออกไซด์ (CO2) เป็นส่วนใหญ่อาจมีก๊าซไฮโดรเจนซัลไฟด์ (H2S) ไนโตรเจน (N2) และไฮโดรเจน (H2) และไอน้า ผสมอยู่ด้วย ซึ่งรวมกันเรียกว่า “ก๊าซชีวภาพ”
ขั้นตอนการย่อยสลายสารอินทรีย์ในสภาวะไม่มีอากาศ
องค์ประกอบของก๊าซชีวภาพ
- ก๊าซมีเทน เป็นองค์ประกอบหลัก มีคุณสมบัติจุดไฟติดได้ดี มีสัดส่วนประมาณร้อยละ 50-75
- ก๊าซคาร์บอนไดออกไซด์ (CO2) เป็นส่วนประกอบรอง เป็นก๊าซเฉื่อยไม่ติดไฟ มีประมาณร้อยละ 36-39
- ก๊าซอื่น ๆ เช่น ก๊าซไฮโดรเจน (H2) ก๊าซไฮโดรเจนซัลไฟด์ (H2S) ประมาณร้อยละ 1-3
ก๊าซชีวภาพ 1 ลูกบาศก์เมตร (ค่าความร้อน 21 เมกกะจูล) เทียบเท่ากับ
ปัจจัยที่มีผลต่อการผลิตก๊าซชีวภาพ
อุณหภูมิ (Temperature)
โดยทั่วไปช่วงอุณหภูมิที่เหมาะสมส้าหรับแบคทีเรียมีอยู่ 3 ช่วง คือ
- กลุ่มแบคทีเรีย Phychrophillic จะย่อยสลายสารอินทรีย์ได้ดีในช่วงอุณหภูมิต่้า (5-15?C)
- กลุ่มแบคทีเรีย Mesophillic จะย่อยสลายสารอินทรีย์ได้ดีในช่วงอุณหภูมิปานกลาง (35-37?C)
- กลุ่มแบคทีเรีย Thermophillic จะย่อยสลายสารอินทรีย์ได้ดีในช่วงอุณหภูมิสูง (50-55?C)
การย่อยสลายสารอินทรีย์ และการผลิตก๊าซจะเกิดขึ้นในอัตราสูงมากในช่วงอุณหภูมิปาน กลางและอุณหภูมิสูง
ความเป็นกรด-ด่าง (pH)
ช่วง pH ที่เหมาะสมต่อการเจริญเติบโตของแบคทีเรียอยู่ในช่วง 6.5-7.5 ถ้าต่้ากว่า 5 จะมีอันตรายต่อแบตทีเรียที่สร้างมีเธนแต่แบคทีเรียที่สร้างกรด อินทรีย์สามารถทนต่อสภาพเป็นกรดได้ต่้าถึง 4.5 โดยไม่เป็นอันตราย
อัลคาลินิตี้ (Alkalinity)
ค่าอัลคาลินิตี้ หมายถึง ความสามารถในการรักษาระดับความเป็นกรด-ด่างถ้าค่าอัลคาลินิตี้ต่้า จะมีแนวโน้มเป็นกรดได้ง่าย ค่าอัลคาลินิตี้ที่เหมาะสมต่อระบบหมักมีค่าประมาณ 1,000-5,000 มิลลิกรัม/ลิตร ในรูปของแคลเซียมคาร์บอเนต (CaCO3)
กรดอินทรีย์ระเหยง่าย (Volatile Acid)
กรดอินทรีย์ระเหยง่าย จะถูกน้าไปใช้โดยแบคทีเรียพวกสร้างก๊าซมีเทนแต่ถ้าใช้ไม่ทันจะเกิดการสะสมของกรด ส่งผลให้ค่า pH ลดลง ท้าให้เกิดอันตรายต่อแบคทีเรีย โดยทั่วไปปริมาณกรดอินทรีย์ระเหยง่ายในถังหมักไม่ควรเกิน 2,000 มิลลิกรัม/ลิตร แต่อาจทนได้ถึง 5,000 มิลลิกรัม/ลิตร
สารอาหาร (Nutrients)
ไนโตรเจนและฟอสฟอรัสเป็นธาตุที่ส้าคัญต่อการเจริญเติบโตของแบคทีเรีย ซึ่งอัตราส่วนที่เหมาะสมในระบบ เพื่อให้ประสิทธิภาพการย่อยสลายสารอินทรีย์ และผลิตแก๊สชีวภาพได้ดีควรมีอัตราส่วน COD:N:P เท่ากับ 100:2.2:0.4 หรือ BOD:N:P เท่ากับ 100:1.1:0.2
สารยับยั้งและสารพิษ (Inhibiting and Toxic Substances)
การสะสมของสารบางชนิด เช่น กรดอินทรีย์ระเหยง่าย แอมโมเนียซัลไฟด์ และโลหะหนักบางตัว เช่น โซเดียม โปแตสเซี่ยม สามารถท้าให้การย่อยสลายในสภาพไร้ออกซิเจนหยุดชะงักได้
การกวน (Mixing)
การกวนผสมในถังหมักมีความส้าคัญ เพราะจะท้าให้แบคทีเรียมีโอกาสพบอาหารได้ทั่วถึง และสารอาหารต่าง ๆ ที่แบคทีเรีย ขับออกจะเกิดการกระจายได้ดีขึ้น
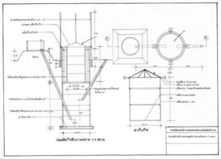
เทคโนโลยีการผลิตก๊าซชีวภาพที่ใช้ในประเทศไทย
ระบบผลิตก๊าซชีวภาพจากมูลสัตว์
(1) ระบบฝาครอบแช่ในบ่อมูล (Floating drum digester) เป็นรูปแบบที่อยู่ในประเทศอินเดีย เนปาล ถูกน้าเข้ามาเผยแพร่ประเทศไทย เมื่อประมาณปี พ.ศ.2519 เพื่อใช้ในการจัดมูลของสัตว์เลี้ยงที่กองอยู่ใต้ถุนบ้าน และแก้ปัญหาด้านสุขอนามัยก้าจัดแหล่งเพาะพันธุ์เชื้อโรค ก๊าซชีวภาพที่เกิดขึ้นถือว่าเป็นเพียงผลพลอยได้
(2) ระบบฝาครอบแช่ในน้า (Separate Floating drum digester) พพ.ปรับปรุงระบบฝาครอบแช่ในบ่อมูล โดยการท้าบ่อกักเก็บมูลด้านบนในส่วนที่ฝาครอบเก็บก๊าซ เป็นบ่อ 2 ชั้น เพื่อหล่อน้าในวงนอกป้องกันก๊าซหนีออกและยังท้าให้ฝาครอบเหล็กเก็บก๊าซแช่อยู่ในน้าที่หล่อ ไม่สัมผัสกับมูลโดยตรง สามารถยืดอายุการใช้งานของฝาครอบ
(3) ระบบผลิตก๊าซชีวภาพแบบโอ่งพร้อมฝาครอบเก็บก๊าซเป็นรูปแบบที่ออกแบบโดย พพ. เมื่อประมาณ พ.ศ.2522 มีวัตถุประสงค์เพื่อต้องการที่จะใช้วัสดุที่มีและใช้งานในท้องถิ่นสามารถน้ามาประยุกต์ใช้งาน และเป็นแบบของประเทศไทย ร่วมกับฝาครอบเก็บก๊าซ
(4) บ่อหมักแบบโดมคงที่ (Fixed dome digester) ส่วนใหญ่สร้างด้วยคอนกรีต หรือก่ออิฐโบกปูนฝังอยู่ในดิน มีท่อเพื่อเติมมูล สัตว์และท่อให้มูลสัตว์ไหลออก ส่วนเก็บก๊าซจะสร้างด้วยคอนกรีต หรือ ก่ออิฐฉาบปูนติดกับตัวบ่อหมัก ท้าให้แรงดันของก๊าซไม่คงที่ ขึ้นอยู่กับปริมาตรของก๊าซภายในบ่อ
(5) บ่อ UASB : Up-Flow Anaerobic Sludge Blanket น้ำเสียจะถูกสูบเข้าที่ก้นถัง ตะกอนแบคทีเรียที่ ก้นถังแบ่งเป็น 2 ชั้น ชั้นล่างเป็นตะกอนเม็ด ขนาด 2-5 มม. เป็นแบคทีเรียใยยาวเกาะกัน ชั้นบนเป็นแบคทีเรียตะกอนเบา ส่วนบนของบ่อหมัก จะมีอุปกรณ์ที่ท้าหน้าที่แยกก๊าซและป้องกันมิให้ตะกอนแบคทีเรีย หลุดออกไปกับน้ำเสีย
(6) แบบ H-UASB (High suspension solid-Up-Flow Anaerobic Sludge Blanket) พัฒนาจากระบบ UASB เพื่อแก้ปัญหาการอุดตันระบบหัวจ่ายน้า เนื่องจากตะกอนของมูลสัตว์ มี Buffer tank ท้าหน้าที่แยกตะกอนแขวนลอยออกจากน้ำเสียและมูลสัตว์ ให้มีปริมาณน้อยที่สุด และน้าแผ่น PE ที่ใช้คลุมบ่อหมักก๊าซชีวภาพแบบราง มาคลุมบน Buffer tank ท้าหน้าที่เก็บก๊าซชีวภาพที่ผลิตได้จากระบบ UASB
(7) บ่อหมักแบบราง (Plug Flow digester) เป็นบ่อซึ่งก่อสร้างด้วยคอนกรีต ตัวบ่อมีรูปร่างยาวคล้ายรางหรือคลองส่งน้าซึ่งมีชื่อเรียกว่า Channel digester ส่วนบนบ่อหมักมีพลาสติกคลุมเพื่อใช้เก็บก๊าซชีวภาพ ตัวบ่อหมักจะถูกฝังอยู่ในดิน มีท่อเติมมูล และท่อน้ามูลออกอยู่ทางหัวและท้ายบ่อ เนื่องจากใช้พลาสติกเป็นตัวเก็บก๊าซ ดังนั้นจึงมีแรงดันก๊าซค่อนข้างต่้า จ้าเป็นต้องมีอุปกรณ์เพิ่มแรงดันเพื่อน้าก๊าซไปใช้งาน
(8) บ่อหมักแบบ Mini CD ( Mini Channel Digester) เป็นระบบที่ย่อมาจากระบบขนาดใหญ่และขนาดกลางที่ มหาวิทยาลัยเชียงใหม่ส่งเสริมและเผยแพร่อยู่ โดยมีปริมาตรประมาณ 100 ลบ.ม. เพื่อเสริมระบบผลิตก๊าซชีวภาพแบบบ่อราง
(9) บ่อหมักก๊าซชีวภาพแบบถุง PVC ได้น้าระบบแบบถุงของไต้หวัน มาปรับปรุงให้ใช้วัสดุที่ผลิตในประเทศ และ มีราคาถูก รูปร่างมีลักษณะทรงกระบอกวางแนวนอนท้าจาก PVC มีปริมาตร ประมาณ 8 ลบ.ม. ก้าลังผลิตก๊าซชีวภาพประมาณ 2 ลบ.ม/วัน
(10) บ่อแบบ Covered lagoon รูปแบบของระบบนี้ได้น้ารูปแบบถุงยางเก็บก๊าซของบ่อแบบ Plug Flow มา สร้างครอบไปบนบ่อรวบรวมมูลสัตว์ที่มีอยู่แล้ว ซึ่งอาจเป็น บ่อคอนกรีตหรือดินขุดก็ได้ ในกรณีที่เป็นบ่อดินขุด อาจปูแผ่นยางที่ใช้ปูสระเก็บน้ามาปูทับ เพื่อมิให้เกิดการรั่วซึมของของเสียลงใต้ดิน
(11) บ่อหมักก๊าซชีวภาพ แบบ พพ. 1 แบบส้าเร็จรูปหรือกึ่งส้าเร็จรูป ส้าหรับฟาร์มเลี้ยงสัตว์ขนาดเล็กและขนาดย่อย สามารถรับน้ำเสียได้10 ลบ.ม./วัน
(12) บ่อหมักก๊าซชีวภาพ แบบ พพ. 2 แบบสาเร็จรูปหรือกึ่งสาเร็จรูป สาหรับฟาร์มเลี้ยงสัตว์ขนาดเล็กและขนาดย่อย สามารถรับน้ำเสียได้2 ลบ.ม./วัน
ระบบผลิตก๊าซชีวภาพจากน้ำเสียในโรงงานอุตสาหกรรม
ระบบ Upflow Anaerobic Sludge Blanket (UASB) น้ำเสียจะถูกสูบเข้าก้นถัง ตะกอนแบคทีเรียที่ก้นถัง แบ่งเป็น 2 ชั้น ชั้นล่าง (Sludge Bed) เป็นตะกอนเม็ด ส่วนชั้นที่ 2 เรียกว่า Sludge Blanket เป็นแบคทีเรียตะกอนเบา ช่วงบนของถังหมักจะมีอุปกรณ์แยกก๊าซชีวภาพ และตะกอนแบคทีเรีย (Gas-Solid Separator) ไม่เหมาะสมกับ น้ำเสียที่มี สารแขวนลอยสูง
ระบบตรึงฟิล์มจุลินทรีย ์ (Anaerobic Fixed Film, AFF) เป็นถังหมักที่ให้จุลินทรีย์เกาะบนวัสดุตัวกลางภายในถังในลักษณะของฟิล์มชีวะ ซึ่งสามารถลดการสูญเสียจุลินทรีย์ที่หลุดออกไปจากระบบบ้าบัดพร้อมกับน้าเสยี ได้ และสามารถฟื้นตัวกลับเข้าส่สู ภาวะท้างานปกติได้อย่างรวดเร็วหากเกิดการเปลี่ยนแปลงสภาพของน้ำเสียที่ไหลเข้าระบบหรือเกิดภาระสารอินทรีย์สูงเกินไป
ระบบ Completely Stirred Tank Reactor (CSTR) มีการกวนผสมภายในถังอย่างทั่วถึง (Mixing System) วิธีการกวนผสม อาจใช้ก๊าซชีวภาพที่ผลิตขึ้นวนกลับภายในถัง หรือการกวนโดยใช้เครื่องกวนผสม ท้าให้มีประสิทธิภาพในการย่อยสลายสูง สามารถรับภาระปริมาณการเติมสารอินทรีย์สูง ช่วยลดระยะเวลาในการกักเก็บน้าเสีย (HRT) ในถังหมัก
ระบบ Anaerobic Baffle Reactor (ABR) เป็นบ่อยาวและมีแผ่นกั้นในแนวตั้งหลายแผ่นวางสลับกัน เพื่อบังคับทิศทางการไหลของน้าให้ไหลขึ้นลงสลับกันไป โดยมีความเร็วในการไหลขึ้นประมาณ 0.2-0.4 เมตร/ชั่วโมง ระบบฯ นี้สามารถใช้กับน้าเสียที่มีสารแขวนลอยสูง แต่ระบบฯ มีขนาดใหญ่ท้าให้ต้องใช้พื้นที่มาก
ระบบ Modified covered Lagoon (MCL) มีลักษณะเป็นสระหรือบึงรูปร่างสี่เหลี่ยมผืนผ้า ที่มีการคลุมด้วยแผ่นพลาสติก จ้าพวก High Density Polyethylene (HDPE) หรือแผ่นพีวีซี(PVC) เพื่อให้เกิดสภาพไม่ใช้อากาศและใช้เป็นตัวเก็บรวบรวมก๊าซชีวภาพที่เกิดขึ้น โดยอาจคลุมทั้งบ่อหรือคลุมเฉพาะในส่วนที่มีการสร้างมีเทนก็ได้ มีการเพิ่มพื้นที่ผิวสัมผัสของตะกอนแบคทีเรียกับน้าเสียให้มากขึ้น และพัฒนาระบบดึงกากตะกอนภายในบ่อ
ประโยชน์ของก๊าซชีวภาพ
ด้านพลังงาน
- ใช้เป็นเชื้อเพลิงเพื่อให้ความร้อนกับ Hot Oil Burner หรือใน Stream Boiler ทดแทนการใช้น้ามันเตา
- ใช้ผลิตกระแสไฟฟ้าเพื่อใช้ในโรงงาน หรือในกระบวนการผลิต หรือใช้กับ ระบบบ้าบัดน้าเสีย
- ใช้ในรูปของพลังงานร่วม โดยใช้ในการผลิตไฟฟ้าและให้ความร้อนกับกระบวนการผลิตร่วมกัน (ก๊าซชีวภาพที่ผลิตได้จะต้องมีปริมาณมากพอ)
ด้านเศรษฐกิจ
- สามารถลดต้นทุนในการผลิต
- มีรายได้จากการขายไฟฟ้า VSPP
- มีรายได้จากการขายคาร์บอนเครดิต
ด้านสิ่งแวดล้อม
- ลดปัญหาของกลิ่นและก๊าซพิษ
- ลดปัญหาการเกิดโรค ไม่เป็นแหล่งเพาะพันธุ์ เชื้อโรคและสัตว์น้าโรค
- ลดการปล่อยก๊าซมีเทนสู่บรรยากาศ
- ลดปัญหาต่อคุณภาพน้าในแหล่งน้าธรรมชาติ
ด้านอื่น ๆ
- น้าที่ผ่านการบ้าบัดจากระบบฯ น้าไปใช้เป็นปุ๋ยน้า
- กากตะกอนที่ผ่านการย่อยสลาย สามารถน้าไปท้าปุ๋ยอัดเม็ดเพื่อปรับปรุงคุณภาพดินให้ดีขึ้น
การคานวณหาปริมาตรน้าเสียและก๊าซชีวภาพที่เกิดขึ้นจากปศุสัตว์
BGG. = Q*COD/1000*Eff. COD removed*Gas Yield
| BGG. ( Biogas Generate) | = | อัตราการผลิตก๊าซชีวภาพ (ลบ.ม/วัน) | |
| Q | = | อัตราการไหลของน้าเสีย (ลบม/วัน) | |
| COD | = | ค่าความสกปรกของน้าเสียในรูปของ COD (มก./ลิตร) | |
| Efficiency COD removed | = | ประสิทธิภาพในก้าจัดของเสียในรูปของCOD (%) | |
| 1,000 | = | (1,000 มก.) ค่าการแปลงหน่วยจากมก.ให้เป็นกก. | |
| Gas yield | = | อัตราการเปลี่ยนของเสียในรูปของ COD เป็นก๊าซมีเธน ( 0.35 ลบ.ม/กก. CODที่ถูกก้าจัดโดยระบบก๊าซชีวภาพ/วัน) |
ตัวอย่าง :
ฟาร์ม ก. มีน้าเสียเกิดขึ้นจากการเลี้ยงสัตว์ 10 ลบ.ม/วัน ค่า CODของน้าเสีย 9,000 มก./ลิตร ประสิทธิภาพในการก้าจัดของเสียในรูปของ COD ประมาณ 80% จากน้าเสียที่เกิดในแต่ละ วันสามารถผลิตก๊าซชีวภาพได้ประมาณวันละเท่าไร
#การคานวณ
Q = 10 ลบ.ม/วัน
COD = 9,000 มก./ลิตร
Eff. COD removed = 80 %
BGG. = 10*9,000/1,0000.80*0.35 ลบ.ม/วัน
ก๊าซมีเธนที่ผลิตได้ประมาณ 25.20 ลบ.ม/วัน
ก๊าซชีวภาพมีองค์ประกอบของมีเธน 60 %
คิดเป็นก๊าซชีวภาพ 25.20/0.60
ก๊าซชีวภาพที่ผลิตได้ 42 ลบ.ม/วัน
หรือวิธีคิดสาหรับปศุสัตว์อย่างง่าย
1 นปส.ผลิตน้าเสีย 200 ลิตร น้าเสีย 10,000 ลิตร (10ลบ.ม.) = 50 นปส.
1นปส. ผลิตก๊าซชีวภาพได้ 0.85 ลบ.ม. 50 นปส. ผลิตก๊าซชีวภาพ = 50*0.85
ก๊าซชีวภาพที่ผลิตได้ = 42.50 ลบ.ม/วัน
การเลือกขนาดบ่อผลิตก๊าซชีวภาพ
การคานวณหาปริมาตรก๊าซชีวภาพที่เกิดในแต่ละวัน จากน้าเสียโรงงานอุตสาหกรรม
BGG. = Q*COD/1000*Eff. COD removed*Gas Yield *%ของก๊าซมีเทนที่ประกอบอยู่ในก๊าซชีวภาพ
#ตัวอย่าง
โรงงานผลิตแป้งมันส้าปะหลังแห่งหนึ่งมีก้าลังผลิต 200 ตันแป้ง/วัน มีน้าเสียที่เกิดจากกระบวนการผลิตประมาณ 2,000 ลบ.ม./วัน ค่า COD ของน้าเสียประมาณ 18,000 มก./ลิตร จะผลิตก๊าซได้กี่ลบ.ม./วันและสามารถน้าไปทดแทนน้ามันเตาในกระบวนการผลิตได้วันละกี่ลิตร
Q = 2,000 ลบ.ม./วัน
COD = 18,000 มก./ลืตร
Gas yield = 0.35 ลบ.ม./กก.CODที่ถูกกาจัด/วัน
Efficiency COD removed ประมาณ 80%
ค่าเฉลี่ยของก๊าซมีเธนที่อยู่ในก๊าซชีวภาพประมาณ 60%
BGG = 2,000*18,000/1000*80/100*0.35/60%
ก๊าซชีวภาพที่ผลิตได้จากระบบผลิตก๊าซชีวภาพประมาณ 16,800 ลบ.ม./วัน
นาไปทดแทนน้ามันเตาได้ ประมาณ 9,240 ลิตร/วัน
อุบัติเหตุที่เกิดจากระบบผลิตก๊าซชีวภาพ
ถังแก๊สบึ้ม ผอ.โรงเรียนดับ
เกิดเหตุถังแก๊สชีวภาพระเบิดใส่ ผอ.โรงเรียนบ้านหนองสโมง เมืองโคราช ดับขณะสาธิตจุดไฟให้ลูกศิษย์ชม เดชะบุญ นร.ไม่มีใครเจ็บวันนี้ (11 มี.ค.) ที่เกิดเหตุพบศพผู้เสียชีวิตนอนหงายใบหน้าแหลกเหลว แขนซ้ายหักหมุนเป็นเกลียว ทราบชื่อ นายพงษ์อิทธิพล ซุยดา อายุ 50 ปี เป็น ผอ.โรงเรียนบ้านหนองสโมง จากการสอบสวนทราบว่า ก่อนเกิดเหตุนายพงษ์อิทธิพลผู้ตาย ได้พาเด็กนักเรียนชั้น ป.4 ป.5 และ ป.6 ฝึกเรียนรู้การท้าก๊าซชีวภาพจากมูลสัตว์ เพื่อน้าไปจัดนิทรรศการการเรียนรู้ที่ส้านักงานเขตพื้นที่การศึกษา ในอาทิตย์หน้า ระหว่างนั้นผู้ตายได้พยายามจุดไฟจากถังแก๊ส แต่จุดไม่ติด จึงลองใหม่อีกครั้ง โดยกันให้นักเรียนถอยห่างออกไป จากนั้นผู้ตายได้ยืนคร่อมถังแก๊สชีวภาพจู่ ๆ ถังแก๊สเกิดระเบิดขึ้นเสียงดังสนั่นหวั่นไหว ทำให้ร่างของผู้ตายกระเด็นลอยละลิ่วชนเพดานหลังคาอาคารก่อนตกลงบนพื้นอย่างแรงทำให้เสียชีวิตทันทีส่วนเด็กนักเรียนปลอดภัยไม่มีใครได้รับบดเจ็บนอกจากนี้ แรงระเบิดยังท้าให้ถังแก๊สที่ท้าจากวัสดุไฟเบอร์ กระเด็นออกไปนอกอาคารเรียนไกลกว่า 30 เมตร.
ถังแก๊สชีวภาพบึ้ม 3 นักศึกษากระเด็น เผยเหตุประมาท
ถังแก๊สชีวภาพบึ้ม 3 นักศึกษากระเด็น เผยเหตุประมาทนักศึกษาเคราะห์ร้าย ทาโครงการถังบรรจุชีวภาพเตรียม ส่งอาจารย์ก่อนจบหลักสูตร ขณะช่วยกันลงมือประดิษฐ์เกิดระเบิดตูมสนั่น ส่งผลให้บาดเจ็บ ถึงหามส่ง รพ. อาจารย์ทราบเหตุ รุดเยี่ยมและสอบถามอาการคนเจ็บส่งรพ.นักศึกษาทั้ง 3 คน ร่วมกลุ่มกันท้าโครงการประดิษฐ์ ถังบรรจุชีวภาพ ที่ทำจากมูลหมู ส้าหรับไว้ใช้ในครัวเรือน ซึ่งเป็นโครงการที่จะต้องน้าเสนออาจารย์ ก่อนที่จะจบหลักสูตร แต่จากการสอบถามนักศึกษาแล้วทราบว่าขณะที่ทั้ง 3 คน ก้าลังถ่ายแก๊สจากถังแก๊สลูกหนึ่งไปบรรจุไว้ในถังน้ามันขนาด 200 ลิตร ที่คิดค้นขึ้นมาใหม่ เพื่อเอาไว้ใช้ในครัวเรือน จนเต็มถังแล้ว เกิดความสงสัยว่า แก๊สจะรั่วซึมออกจากตัวถังเพราะใช้จมูกดมดูแล้วไม่มีกลิ่น จึงใช้วิธีน้าไฟแช็กมาจุดทดลองดู ก็เกิดเหตุการณ์ไม่คาดฝันขึ้นเมื่อถังน้ามัน 200 ลิตร เกิดระเบิดตูมสนั่นจนท้าให้ทั้ง 3 คน กระเด็นไปคนละทิศละทางได้รับบาดเจ็บที่ใบหน้า และลืมตาไม่ขึ้น และหลังเกิดเหตุแล้วทางญาติๆได้รีบน้าตัวส่งมารักษาที่โรงพยาบาล พร้อมกับแจ้งข่าวให้ทางวิทยาลัยทราบเรื่องที่เกิดขึ้น
“เสียชีวิต 5 ศพ“
เมื่อเวลา 15.45 น. วันที่ 22 ส.ค. ร.ต.ท.บรรณสิทธิ์ ชัยนวล ร้อยเวร สภ.อ.ปากท่อ จ.ราชบุรี รับแจ้งมีเหตุคนงานลงไปซ่อมบ่อผลิตแก๊สชีวภาพเสียชีวิตโดยไม่ทราบสาเหตุรวม 5 ศพ ที่ฟาร์มหมูชื่อหนองบัวฟาร์ม โคเจนเนอเรชั่น หมู่ 1 ต.บ่อกระดาน อ.ปากท่อ จึงรายงานให้ผู้บังคับบัญชาทราบแล้วพร้อมด้วย พ.ต.อ.บ้ารุง คงชีพ ผกก.สภ.อ.ปากท่อ น้าก้าลังร่วมกับเจ้าหน้าที่กู้ภัยมูลนิธิประชานุกูล รุดไปตรวจสอบ
“น้าขี้หมูไหลทะลัก ขึ้นไม่ทัน”
ที่เกิดเหตุเป็นฟาร์มหมูขนาดใหญ่ เนื้อที่กว่า 200 ไร่ จุดเกิดเหตุบริเวณบ่อปูนผลิตแก๊สชีวภาพด้านหลังฟาร์มปากบ่อสูงจากพื้น 50 ซม. กว้าง 3 เมตร ลึก 12 เมตร พบศพชายทั้ง 5 ลอยอยู่ในบ่อน้าขี้หมูส่วนบริเวณปากบ่อมีพัดลมดูดอากาศขนาดใหญ่ล้มอยู่และมีสายไฟวางระเกะระกะ จากการสอบสวนเบื้องต้นทราบว่า ก่อนเกิดเหตุ น.สพ.ฉลาด สัตวแพทย์และหัวหน้าคนงานในฟาร์มได้น้าลูกน้องคนงานทั้ง 4 คน ลงไปซ่อมปั๊มน้าในบ่อที่กักขี้หมูในฟาร์มเพื่อท้าเป็นไบโอแก๊ส หรือแก๊สชีวภาพผลิตไฟฟ้า และใช้เป็นแก๊สหุงต้มใช้ภายในฟาร์ม โดยก่อนลงไปในบ่อได้ปล่อยน้าในบ่อจนแห้งสนิทแล้วปิดวาล์วท่อระบายไว้ พร้อมกับใช้พัดลมดูดอากาศขนาดใหญ่ตั้งปากบ่อเพื่อดูดซับกลิ่นอับในบ่อ และยังต่อสายไฟลงไปท้างานในบ่อ ระหว่างก้าลังซ่อมปั๊ม จู่ๆ กลับมีน้าขี้หมูไหลทะลักลงไปในบ่ออย่างรวดเร็ว ท้าให้ น.สพ. ฉลาดและคนงานขึ้นมาไม่ทัน เสียชีวิตดังกล่าว
ขอบคุณครับ
